Кранове колодкове гальмо ТКГ-200

Гальма основний елемент у безпечній роботі будь-якого механізму, особливо це важливо у підіймально-транспортній техніці. Надійне та функціональне колодкове гальмо ТКГ-200 добре зарекомендував себе в роботі. Гальма сірки ТКГ-200 ви зможете придбати в нашому магазині, а також є низка інших приладів.
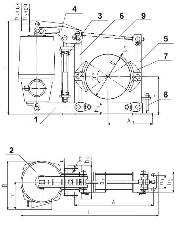
Опис кранового гальма ТКГ-200 |
| Використовується у підіймально-червоній техніці для гальмування й утримання вантажу. |
| Гальмо ТКГ-200 обладнане гідроштовхувачем ТЕ-50. |
| Для експлуатації гальм максимальний діаметр барабана становить 200 мм. |
| Гальмо виготовлене з високоміцної сталі, що гарантує тривалу експлуатацію. |
| Гальма стійкі до перегрівання колодок і зберігають свою працездатність за підвищених температур. |
| ТКГ-200 легко подається ремонту, можлива заміна всіх складників. |
Плюси придбання товарів у нас
![]() | Індивідуальний підхід і допомога кожному клієнту. |
![]() | Весь асортимент практично завжди наявний на складах. |
![]() | За потреби ми реалізуємо товари на замовлення. |
![]() | Швидка доставка по Україні в будь-який регіон. |
У нас найширший асортимент різних товарів, зокрема рідкісних і важкодоступних. Ми здатні дістати необхідні товари та привезти клієнту навіть із за кордоном.
Конструкція гальма ТКГ-200
Гальмо ТКГ-200 складається з рамки гальма ТКГ-200, яка так само складається з гальмівного пружинного механізму та власне гальмівних колодок, а також гідротолкасері ТЕ-30, який і є розгаразним приводом.

| Основні | |
|---|---|
| Країна виробник | Україна |
| Гарантійний термін | 12 міс |
| Користувальницькі характеристики | |
| колодкове гальмо | ТКГ-200 |
| гидротолкатель | ТЕ-30 |
| діаметр барабана томозного | 200мм |
| ТКГ-200 | Гальма крановий |
| Технічні характеристики | |
| Робоча напруга | 380 В |
| Температура навколишнього повітря | — 40°С до +40°С |
| Частота струму | 50 Гц |
| Відносна вологість повітря | 80% при 20°С |
- Ціна: Ціну уточнюйте
- Спосіб упаковки: заводська







